L’introduzione in Italia del primo sistema di scarico in polipropilene ad innesto, la si deve al fondatore della Bampi S.p.A. Sono anni di grande sviluppo edilizio e la semplicità, l’affidabilità e la maneggevolezza con le quali gli idraulici installano il sistema di scarico ad innesto in polipropilene, sono la conferma che Bampi avrebbe garantito anni di sviluppo e crescita nel settore idrotermosanitario italiano.


Bampi
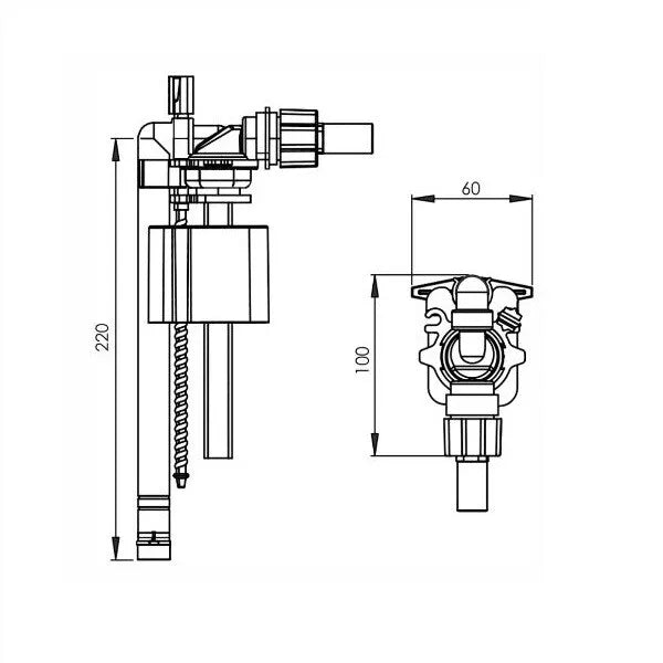
Galleggiante orizzontale Bampi Magnetic CMAGNCER silenzioso per scarico wc
Prezzo scontato€19,50







